68B Castleton Crescent, Gowrie

$685,000+

2 1 1 472 m2

Inspect

Inspections

Wednesday 25 March 5:00 PM - 5:30 PM

Saturday 28 March 11:00 AM - 11:30 AM

Private townhouse alternative

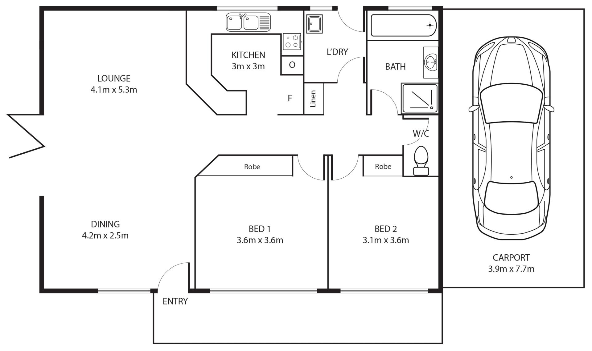
For those seeking a unique alternative that offers simplistic living, this delightful, two-bedroom property is a great choice. With no body corporate or strata fees, this single level, freestanding home offers a private lifestyle, close to Erindale Shops with an easy commute around Canberra.

An open plan, living space welcomes you into the home, full of natural light thanks to an abundance of well positioned windows that take in lovely garden views. There is a reverse cycle unit here to provide year-round comfort and bifold doors allowing direct access to the private, paved courtyard. The living space includes low maintenance, easy-care tiled flooring that flows into the kitchen.

The kitchen is modern, with timeless decor and quality finishes including a microwave alcove, stainless steel appliances, stone bench-tops and a dishwasher. Storage is plentiful throughout the home with upper cabinetry in the kitchen, a generous linen cupboard and built-in robes in each of the two generous bedrooms. The bathroom includes a freestanding spa bath with a separate toilet and large laundry for your convenience.

The home sits comfortably on a generous, approximately 472sqm battle-axe style block that is finished with low maintenance gardens, a single carport plus additional off-street parking. The home holds a convenient position, within the tightly held suburb of Gowrie, just moments from Erindale Shopping Precinct where you will find a variety of shops, dining options, medical and leisure services. There are public transport links close by with an easy drive into Tuggeranong, Woden and the City.

• Freestanding two-bedroom home with no strata fees
• Open plan, tiled living space with reverse cycle unit
• Modern kitchen with stainless steel appliances
• Built in robes in two bedrooms, linen cupboard
• Bifold doors from living room leading to paved courtyard
• Very private yard, low maintenance gardens
• Single carport, additional off-street parking available
• Great location, close to Erindale Shopping Precinct and Gowrie shops.

Living Size: 90.36sqm
Rates: $3,099p.a (approx)
Land Tax: $4,345p.a (approx)

The information contained above is believed to be correct at time of advertising however, we take no responsibility for the accuracy of this information and prospective purchasers are advised to rely on their own research.

Details

Address 68B Castleton Crescent, Gowrie
Price $685,000+
Property Type Residential
Property ID 190
Category House
Land Area 472 m2
Floor Area 90 m2

Share

Mark McCann photo

Mark McCann

0423900640

Make an Offer