Sold

16 Habgood Place, Kambah

SOLD for $775,000

3 1 1 620 m2

Freshly updated and move in ready

Bursting with fresh updates, this immaculately maintained home is a great find. Situated at the end of a quiet, cul-de-sac street just moments from Namadgi School, Kambah Adventure Playground and Lake Tuggeranong, it is a home that will appeal to young families, downsizers and investors seeking a quality property.

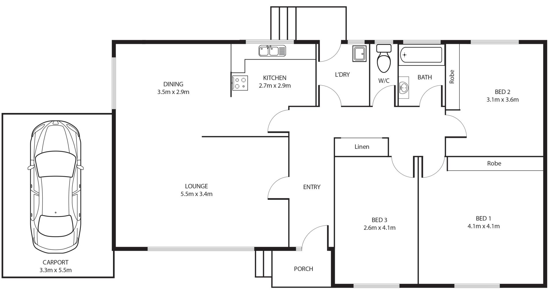
The home has seen a variety of recent updates including fresh paint inside and out. New carpet has been installed in the bedrooms and living spaces with modern, easy-care vinyl plank flooring in the kitchen. The kitchen enjoys a compact design with sufficient storage, electric cooking, and a lovely garden view from the sink.

The kitchen seamlessly connects to the dining space that flows effortlessly through to the spacious loungeroom that is finished with a wall of windows that floods the space with natural light. The home includes ducted gas heating for your comfort and has been finished with new, quality blinds on each window to assist with privacy and energy efficiency.

The home enjoys three generous bedrooms, two of which include built in robes. The family bathroom provides a timeless white colour scheme, an updated glass shower screen, and a separate toilet for the convenience of a busy family.

The garden is simple and low maintenance with a paved entertaining area, level lawn space and a perimeter of Colorbond fencing. There is plenty of scope for further development should you have a green thumb, while also providing a low maintenance, effortless space for those who are time poor.

There is additional off-street parking available in the driveway, with a single carport and drive through access into the backyard. The convenient location has a variety of services, including Namadgi School within walking distance, with public transport close by and effortless access onto Drakeford Drive for a seamless commute into the City.

• Tidy, three-bedroom home with plenty of fresh updates
• Kitchen with electric cooking and new vinyl plank flooring
• Brand new carpet plus new blinds on each window
• Freshly painted inside and out, ducted gas heating
• Two bedrooms with built in robes, linen cupboard
• Paved entertaining area, lawn space, Colorbond fencing
• Single carport, easy commute around Canberra
• Walk to Namadgi School, Adventure playground, Lake Tuggeranong

Living Size: 107.95sqm
Rates: $3,001p.a (approx)
Land Tax: $5,210p.a (approx)

The information contained above is believed to be correct at time of advertising however, we take no responsibility for the accuracy of this information and prospective purchasers are advised to rely on their own research.

Features

Fenced

Details

Address 16 Habgood Place, Kambah
Price SOLD for $775,000
Property Type Residential
Property ID 178
Category House
Land Area 620 m2
Floor Area 107 m2

Share

Mark McCann photo

Mark McCann

0423900640