Auction

59 Sullivan Crescent, Wanniassa

Auction Sat 15th Nov at 9am

4 2 2 979 m2

Auction details

Auction

Saturday 15 November, 9:00 AM

Inspect

Inspections

Saturday 25 October 12:15 PM - 12:45 PM

Magnificent views!

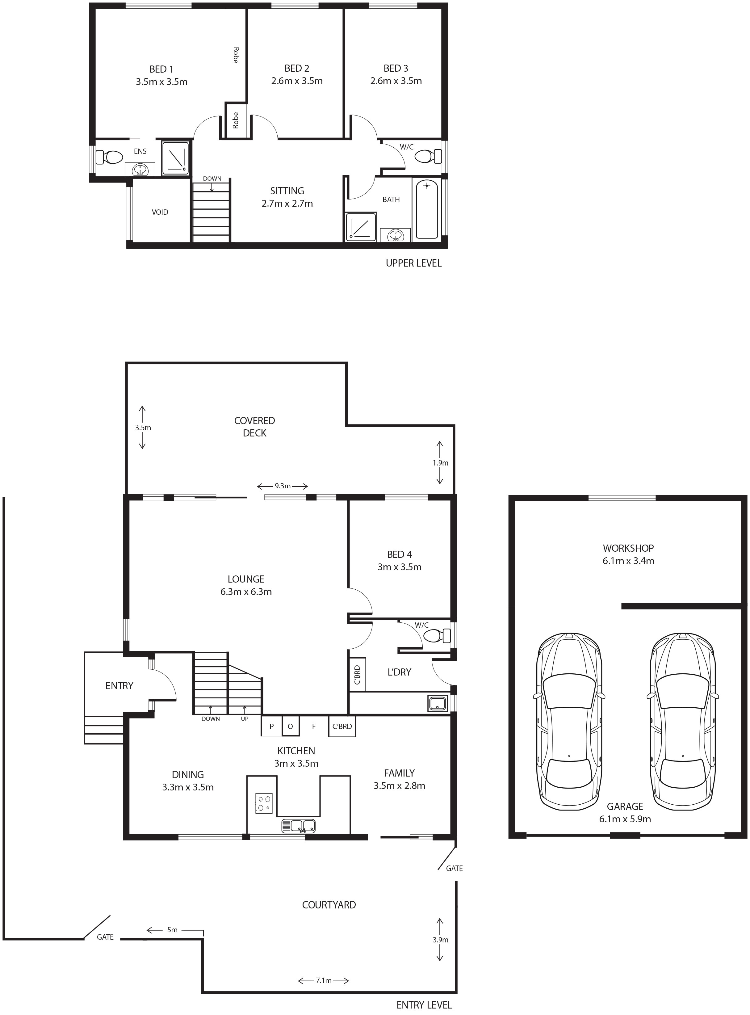
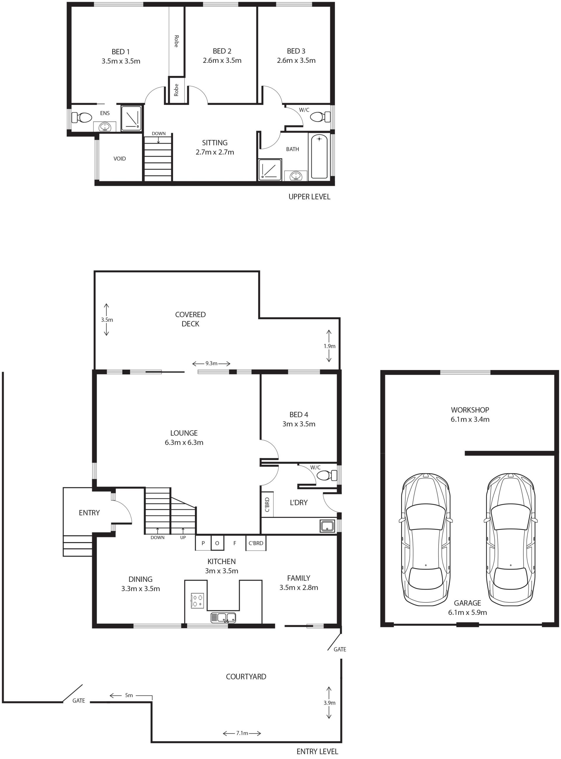
Enjoy summer spent in the pool this year, this incredible property was made to holiday at home. Boasting a premier location in one of Wanniassa’s most prestigious streets, the split-level floor plan provides four bedrooms, multiple light-filled living spaces and breathtaking views of the Brindabellas. Entertain on the deck, or enjoy the pool, you will soon discover why the current owners have called it home for over thirty years.

The private, unassuming façade welcomes you into the property via the slightly off-set double garage that includes an additional workshop at the rear. The home is completely private, secured by a front courtyard with gated access, where you will find an extensive paved space ideal for the barbeque or kids to ride their scooters. From here you are welcomed into the home where you will find the family and dining spaces positioned either side of the modern kitchen.

The kitchen is open plan and incredibly functional, enabling you to cook up a storm whilst chatting to friends and family. There is recessed lighting and quality appliances including a Miele dishwasher, Miele Pyrolytic oven and a Bosch gas cooktop.

Enjoy the multiple living spaces including the large lounge room looking out on to the Brindabellas, which also has plenty of storage for a home office, study nook or even a kids play area. Large windows flood the living spaces with natural light and the lounge room boasts sliding doors that access the fabulous, elevated timber deck that takes in panoramic views of the mountains.

The fourth bedroom is located downstairs, an ideal layout for those seeking a home office or guest room. There is an additional toilet downstairs, adjoining the modern laundry that provides storage, bench space and a large sink. Upstairs you will find three bedrooms, including the master and ensuite, the family bathroom and a bonus sitting room. The home provides plenty of great comforts, including ducted gas heating, evaporative cooling and a security system with three zones.

Enjoy entertaining on the deck, in the courtyard or pull up a chair and watch the kids playing in the cubby house. On a hot day, enjoy a dip in the stunning, saltwater pool and relax, knowing that all the pool equipment, including a robotic vacuum cleaner is available.

The home enjoys a coveted address, within the heart of Wanniassa Hills, close to schools, shops and arterial roads. Enjoy an effortless commute into Tuggeranong, Woden and the City with public transport links available.

• Tightly held, four bedroom, ensuite home with pool
• Ducted heating, evaporative cooling, security system
• Central kitchen sits between family and dining room
• Large, separate lounge with access onto the deck
• Covered deck with ceiling fan and panoramic views
• Saltwater pool, pool equipment and robotic vacuum
• Great yard for kids, includes rustic-style cubby house
• Enclosed, paved front courtyard, very private and secure
• Double garage with generous attached workshop space
• Great location, opposite park, close to schools and shops

Living Size: 170.5sqm
Rates: $3,441p.a (approx)
Land Tax: $6,390p.a (approx)

The information contained above is believed to be correct at time of advertising however, we take no responsibility for the accuracy of this information and prospective purchasers are advised to rely on their own research.

Features

Secure Parking in-Ground Pool Balcony Deck Courtyard Outdoor entertainment area Fenced

Details

Address 59 Sullivan Crescent, Wanniassa
Price Auction Sat 15th Nov at 9am
Property Type Residential
Property ID 169
Category House
Land Area 979 m2
Floor Area 170 m2

Share

Mark McCann photo

Mark McCann

0423900640

Make an Offer